Bar musical Jazzmatazz

Bar Musical Jazzmatazz, Barcelona
Bar Musical Jazzmatazz, Barcelona
Arquitectura: Eugènia Santacana + Lluís Jubert
Proyecto: 1997
Construcción: 1997
Superficie: 242m2
Constructora: Inox Moble S.L.

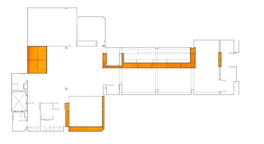
Partimos de un local multiforme, un presupuesto bajo y por exigencias del cliente, un tiempo muy limitado para realizar el proyecto y su ejecución. Cuatro estructuras de luz son los focos de atracción como grandes escaparates que despiertan el interés del público; el expositor, la barra, el show room y el escenario. Cuatro estructuras de luz con iluminación propia flotan dentro de un contenedor irregular pintado de azul oscuro eliminando los límites del local. Cuatro estructuras de luz iluminan el espacio, las copas, las botellas, las siluetas del público, los músicos y el personal. Cuatro estructuras de luz modulares de acero inox. mate, vidrio laminado incoloro, papel de embalaje adhesivo naranja y tubo flexible de luz regulable. Cuatro estructuras de luz que finalmente fueron tres. 

Share by: