Centro de recursos para jóvenes Can Xic en Viladecans

Centro de recursos para jóvenes Can Xic en Viladecans
Ayuntamiento Viladecans
Centro de recursos para jóvenes Can Xic en Viladecans
Ayuntamiento Viladecans
Arquitectura: Eugènia Santacana + Estela Camprubí
Instalaciones: Ingeniar bcn. S.L.
Estructuras: Eskubi-Turró Arquitectes S.L.
Mediciones y presupuesto: Miquel Millán + Ana Bono
Fotógrafo: Antonio Navarro
Proyecto: 2006
Construcción: 2009
Superficie: 765m2
Presupuesto: 1.370.000€
Constructora: ISTEM

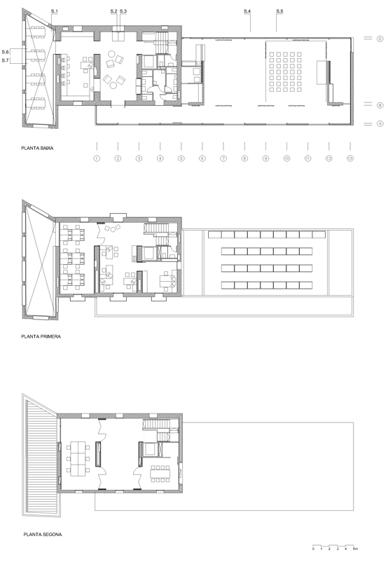
El proyecto responde a las necesidades de adecuar la masia de Can Xic en un equipamiento destinado a centro de recursos para jóvenes de Viladecans y espacio de creación juvenil, con la reforma y ampliación del conjunto. La propuesta prevé mantener el cuerpo principal de la masia y las arcadas como referentes históricos y acompañarlo con un volúmen horizontal adosado que contiene el espacio polivalente, la parte del programa que requiere un espacio y estructura más flexible. Este proyecto se confinanció con fondos de la UE, Proyecto cRRescendo (CONCERTOI). Comportó la colocación de una planta fotoovoltaica de 6 kW y condiciones especiales de aislamiento en cerramientos y carpinterias. 
Share by: