Español
es
EUGÈNIA SANTACANA
A
rquitecta
PROYECTOS
ESTUDIO
Equipamientos
Vivienda
Interiorismo
Espacio público
Cronologia
Trayectoria
Equipo
Premios
Conferencias
Publicaciones
Clientes
Contacto
CAT
ESP
ENG
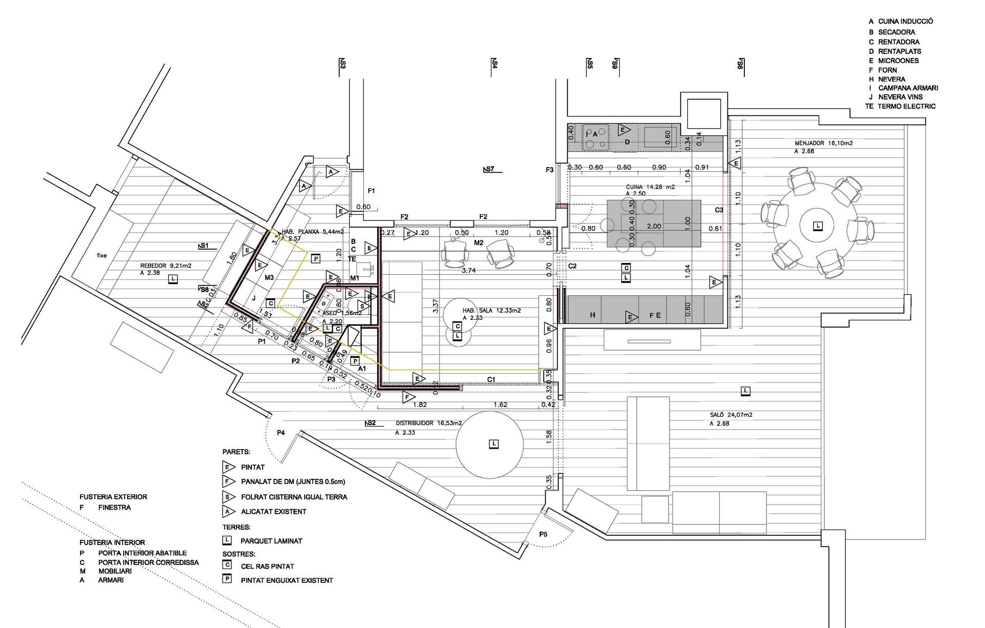
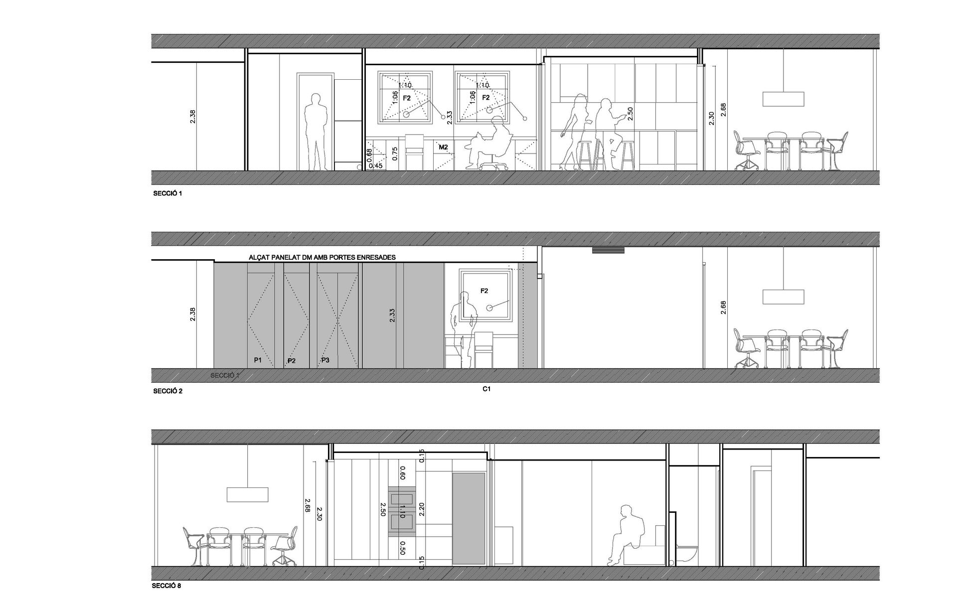
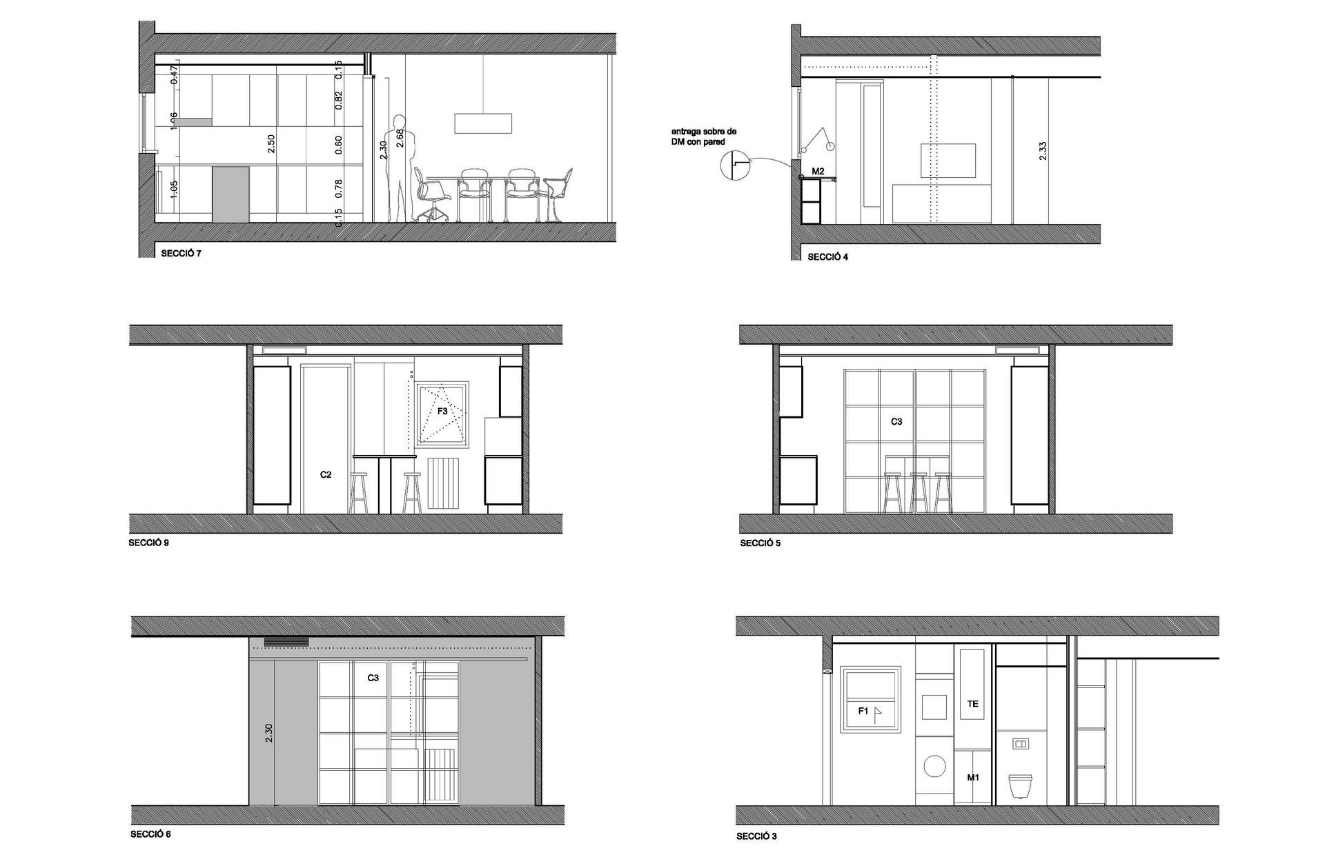
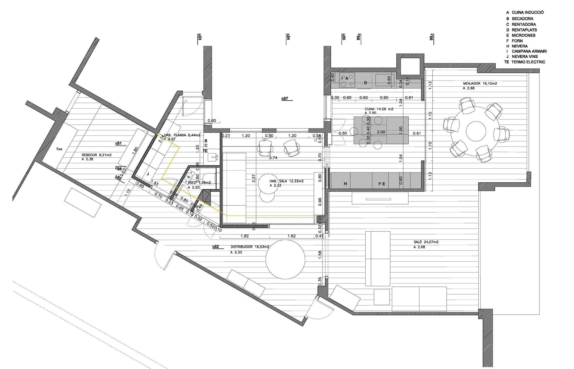
Reforma Vivienda Via Augusta
Reforma Vivienda en Via Augusta, Barcelona
+ info
Button
Button
Button
Button
Button
Ver más
Button
Button
Button
Button
Reforma Vivienda en Via Augusta, Barcelona
Arquitectura:
Eugènia Santacana
Mediciones y presupuesto:
Eugènia Santacana
Proyecto:
2020
Construcción:
2021
Superficie:
90 m2
Constructor:
AINRA Construccions i Reformes, SL
Button
Button
Button
Button
Ver más
© 2024
Todos los derechos reservados | Eugènia Santacana Arquitecta
Share by: