Vivienda en L'Hospitalet

Vivienda en L'Hospitalet 
Vivienda en L'Hospitalet 
Arquitectura: Eugènia Santacana + Estela Camprubí + Lluís Jubert
Mediciones y presupuesto: Lluís Roig + Lluís Fontanet
Proyecto: 1997
Construcción: 1998
Superficie: 218m2
Constructora: Pleysa S.A.

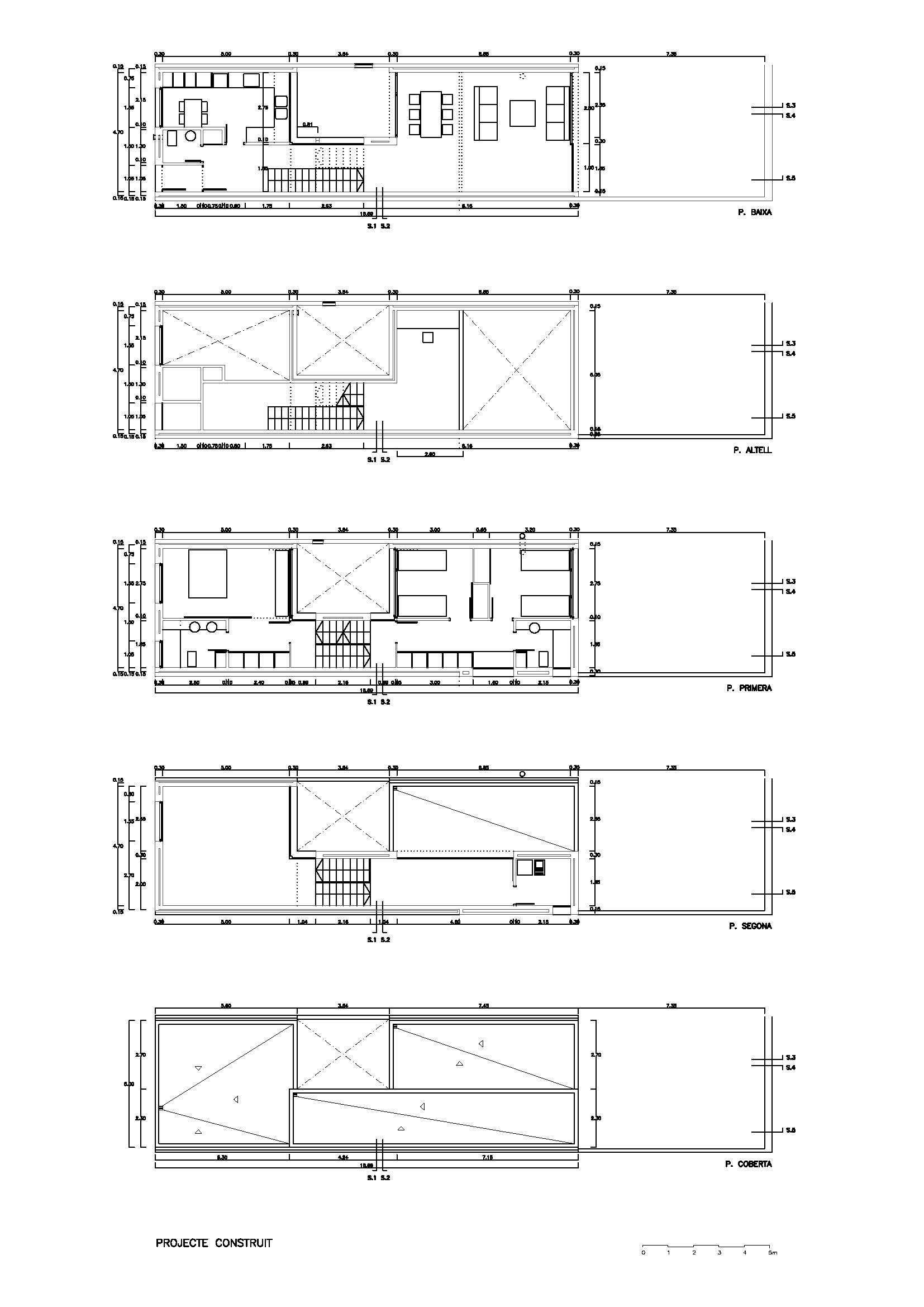
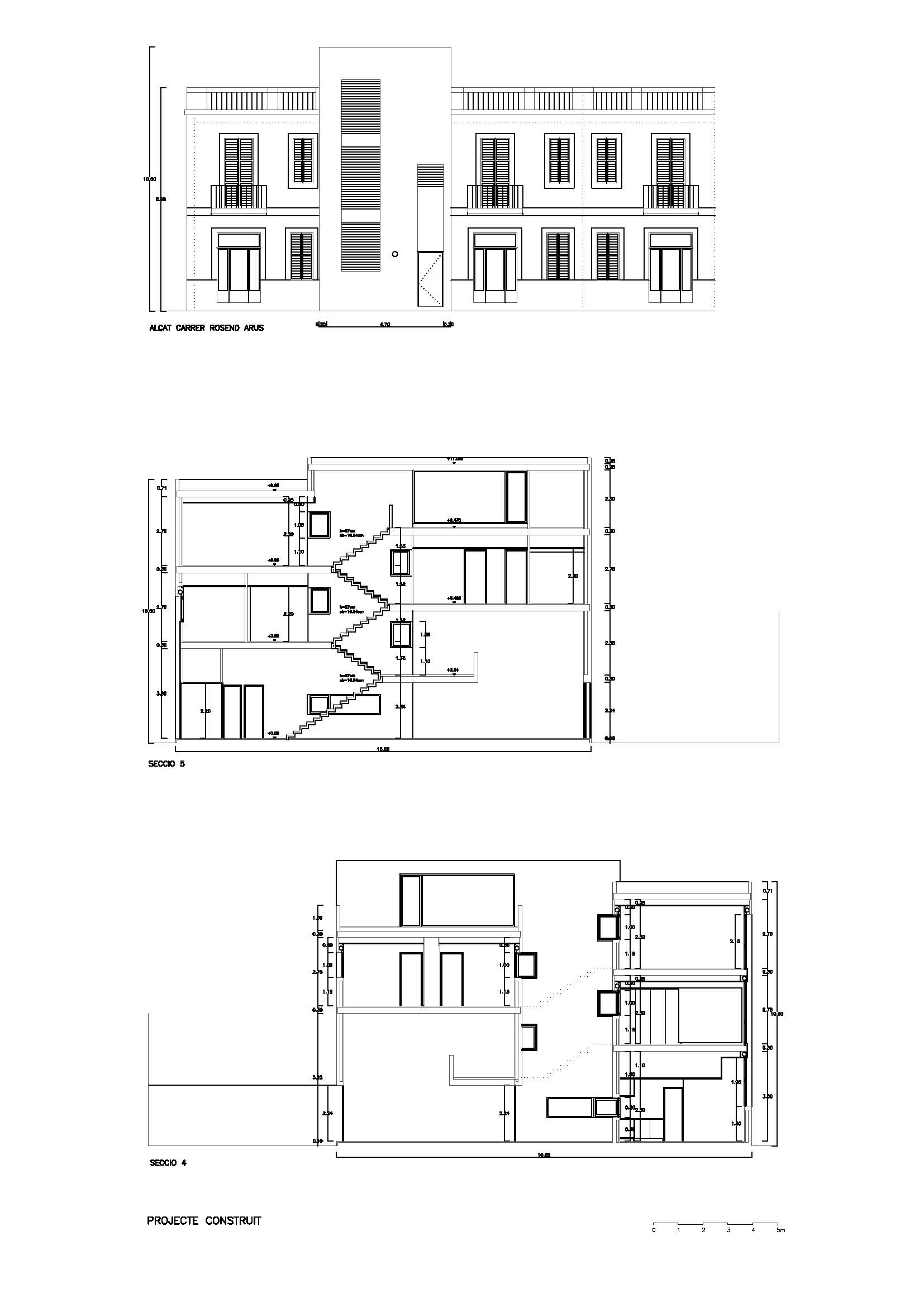
Situado en una de las zonas más céntricas de Hospitalet de Llobregat, entre casas adosadas, el edificio pretende organizar una casa familiar de 5 metros de crujía. El solar pertenece a una parcela ocupada por dos viviendas. Se derriba una de ellas y la nueva construcción de PB+2 se alinea con la vivienda contigua dejando un jardín privado y compartido. La definición de la propuesta está fuertemente ligada a la Normativa Urbanística. La obligatoriedad de la altura mínima en planta baja (3.70m) determina la sección de la vivienda y su funcionamiento. Los forjados posteriores se desplazan media planta y se conectan a través de la escalera central metálica. La condición de mantener el actual patio interior dentro de la profundidad edificable de 16.70m determina la organización de los espacios. Longitudinalmente la planta se divide en dos franjas distintas, una estrecha de circulaciones y servicios y otra más amplia formada por estancias. Dos franjas que se reflejan en la fachada a través de dos huecos verticales, uno translúcido y otro transparente. Dos huecos formados por carpinteria de aluminio anodizado y vidrio contrastan con la superficie homogénea del monocapa blanco. Finalmente las medianeras se tratan como fachadas debido a la diferencia de altura de las viviendas colindantes.


Share by: