Vivienda en Púbol (Premio FAD 1998)

Vivienda en Púbol (Premio FAD Arquitectura 1998)
Vivienda en Púbol (Premio FAD Arquitectura 1998)
Arquitectura: Eugènia Santacana + Lluís Jubert
Mediciones y presupuesto: Xavi Bonet
Fotógrafos: Jordi Bernadó + Eugeni Pons + Hisao Suzuki
Proyecto: 1996
Construcción: 1997
Superficie: 212m2
Constructora: Obres i Construccions Joan Fusté S.L. 

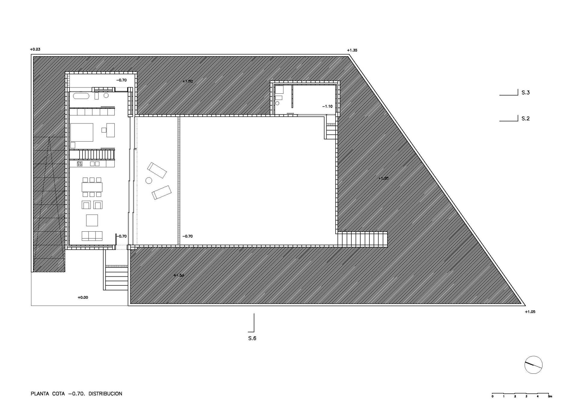
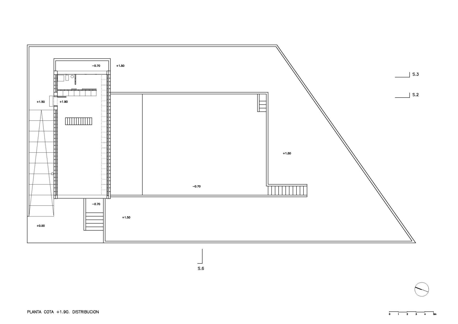
El proyecto, para un cliente excepcional y de bajo presupuesto, responde a un programa atípico de vivienda y sala de exposiciones. La propuesta es consecuencia de las condiciones urbanísticas de un solar de poco interés situado a las afueras del núcleo urbano de Púbol. La construcción pretende apropiarse del lugar y conformar un recinto exterior privado, bien orientado y protegido de la tramuntana. Modificamos la topografía. Rebajamos la tierra de la parte central del solar y la colocamos en los bordes. Construimos unos muros que contienen las tierras conformando un patio cerrado exterior. Sobre estos muros, en el extremo norte de la parcela, situamos un contenedor que deja un vacío en la planta sótano. El vacío abierto al espacio exterior es la vivienda y el contenedor cerrado en si mismo es la sala de exposiciones. La vivienda, de dimensiones reducidas, tiene la fachada norte enterrada y la fachada sur abierta al patio. En el patio, en la parte oeste, construimos un pequeño anexo bajo tierra. La sala de exposiciones, con un acceso independiente a través de una rampa, es un espacio interior aislado que recibe la luz zenitalmente. 

Share by: