Proyecto de 50 viviendas dotacionales en Vilafortuny, Cambrils (1er premio)

Proyecto de 50 viviendas dotacionales en Vilafortuny, Cambrils (1er premio)
Concurso INCASOL
Proyecto de 50 viviendas dotacionales en Vilafortuny, Cambrils (1er premio)
Arquitectura: Eugènia Santacana + Estela Camprubí + Oriol Bosch + Eduard Bosch
Estructuras: Oriol Bosch + Eduard Bosch
Mediciones y presupuesto: Aumedes
Proyecto: 2009
Proyecto de instalaciones: INGENIAR BCN SLP
Proyecto de telecomunicaciones: Pedro Jiménez
Certificación energética: Trama Tecnoambiental
Superficie: 2850 m2

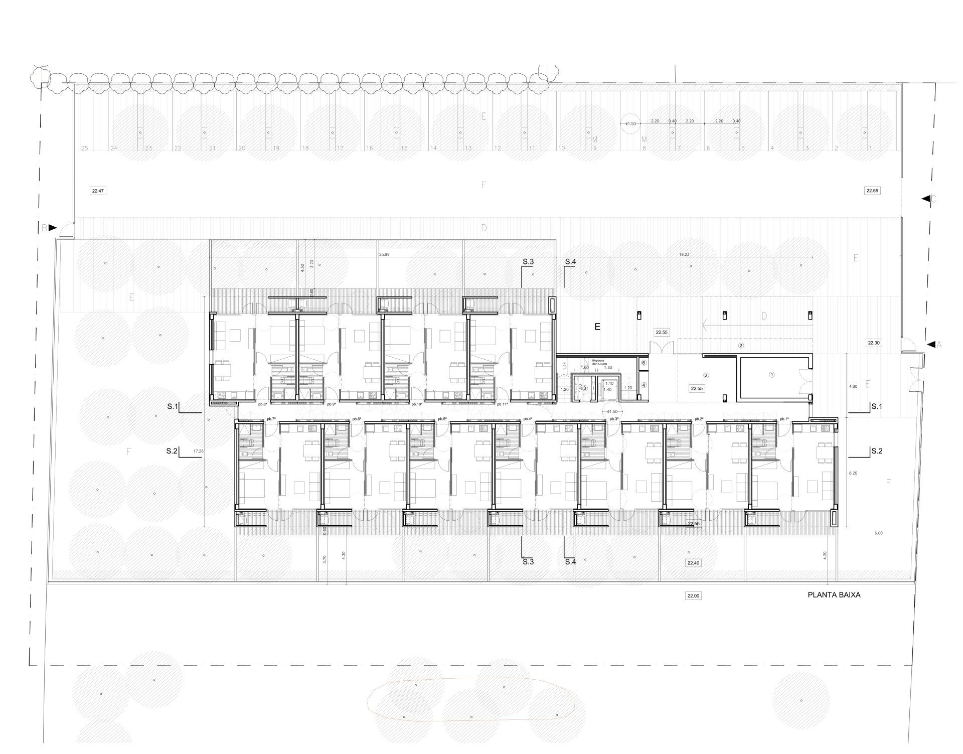
Edificio de planta baja y 3 plantas de piso, con un único núcleo de escalera / ascensor situado en la parte central y acceso por corredor central a las diferentes viviendas. Se utiliza una única tipología de vivienda que simplifica la solución constructiva, se alterna la posición de las viviendas por plantas sin perder la coincidencia de los pasos de instalaciones, para conseguir un dinamismo de alzado y dar privacidad a las puertas de acceso de cada vivienda. En la planta baja encontramos un espacio reservado para una estación transformadora, la reserva para recogida de residuos (CTE HS-2) y el porche de acceso. El acceso al edificio tanto para los peatones como para los vehículos es por la calle Mas de Clariana.

Share by: