Reforma de vivienda bifamiliar en Calella

Reforma de vivienda bifamiliar en Calella de Palafrugell
Reforma de vivienda bifamiliar en Calella de Palafrugell
Arquitectura: Eugènia Santacana + Lluís Jubert
Proyecto: 1993
Construcción: 1995
Superficie: 534m2
Constructor: Edetco Gestió

La casa, situada fuera del núcleo urbano de Calella de Palafrugell en la Costa Brava, junto al mar Mediterráneo, fue construida por el arquitecto Josep Maria Bosch Reig para dos familias como segunda residencia en el año 1965. La vivienda se articula formando volúmenes dispuestos sobre un terreno con fuerte pendiente y a su vez generando grandes terrazas a distintos niveles relacionadas fuertemente con el interior de la vivienda y disfrutando de excelentes vistas.
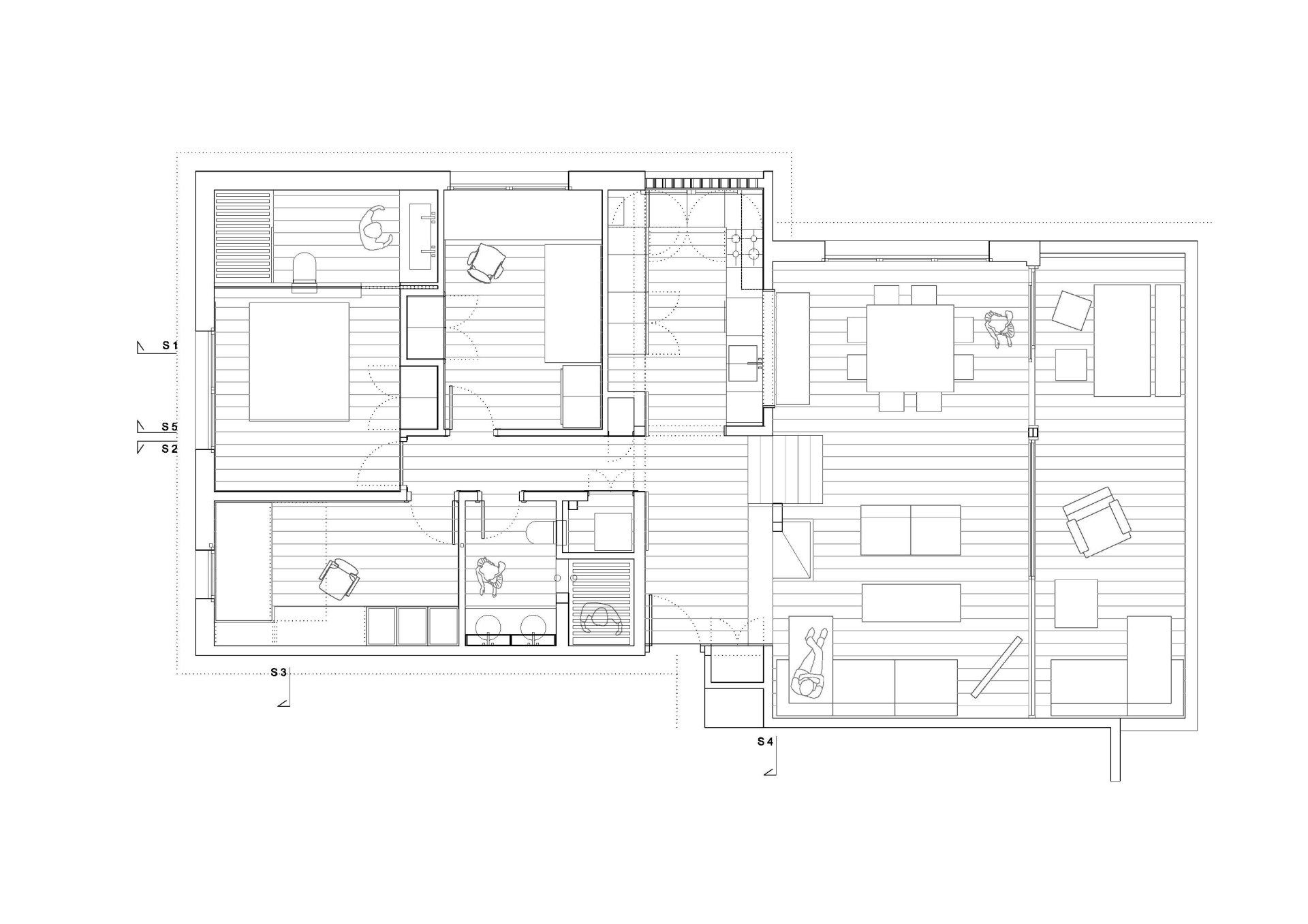
Inicialmente el programa de una vivienda se desarrolla en planta baja más un pequeño apartamento para invitados, con acceso independiente en la planta piso, unidas ambas plantas por una escalera interior. La otra vivienda se desarrolla en la planta piso mientras que el apartamento se encuentra en la planta baja.
La reforma pretende mantener el carácter original de la casa y modificar tan solo el programa de cada vivienda adecuándolo a las nuevas necesidades de ambas familias.
Se mantiene parte del programa de cada vivienda en la planta baja y el resto en la planta piso, transformando la zona destinada a invitados en habitaciones y baños, participando así cada una de ellas de las zonas ajardinadas sin renunciar a las grandes vistas al mar.
Las zonas ajardinadas se amplían y se vuelcan al mar. Cada espacio se relaciona con el exterior de distinta forma abriendo infinidad de visuales. 

Share by: