Español
es
EUGÈNIA SANTACANA
A
rquitecta
PROYECTOS
ESTUDIO
Equipamientos
Vivienda
Interiorismo
Espacio público
Cronologia
Trayectoria
Equipo
Premios
Conferencias
Publicaciones
Clientes
Contacto
CAT
ESP
ENG
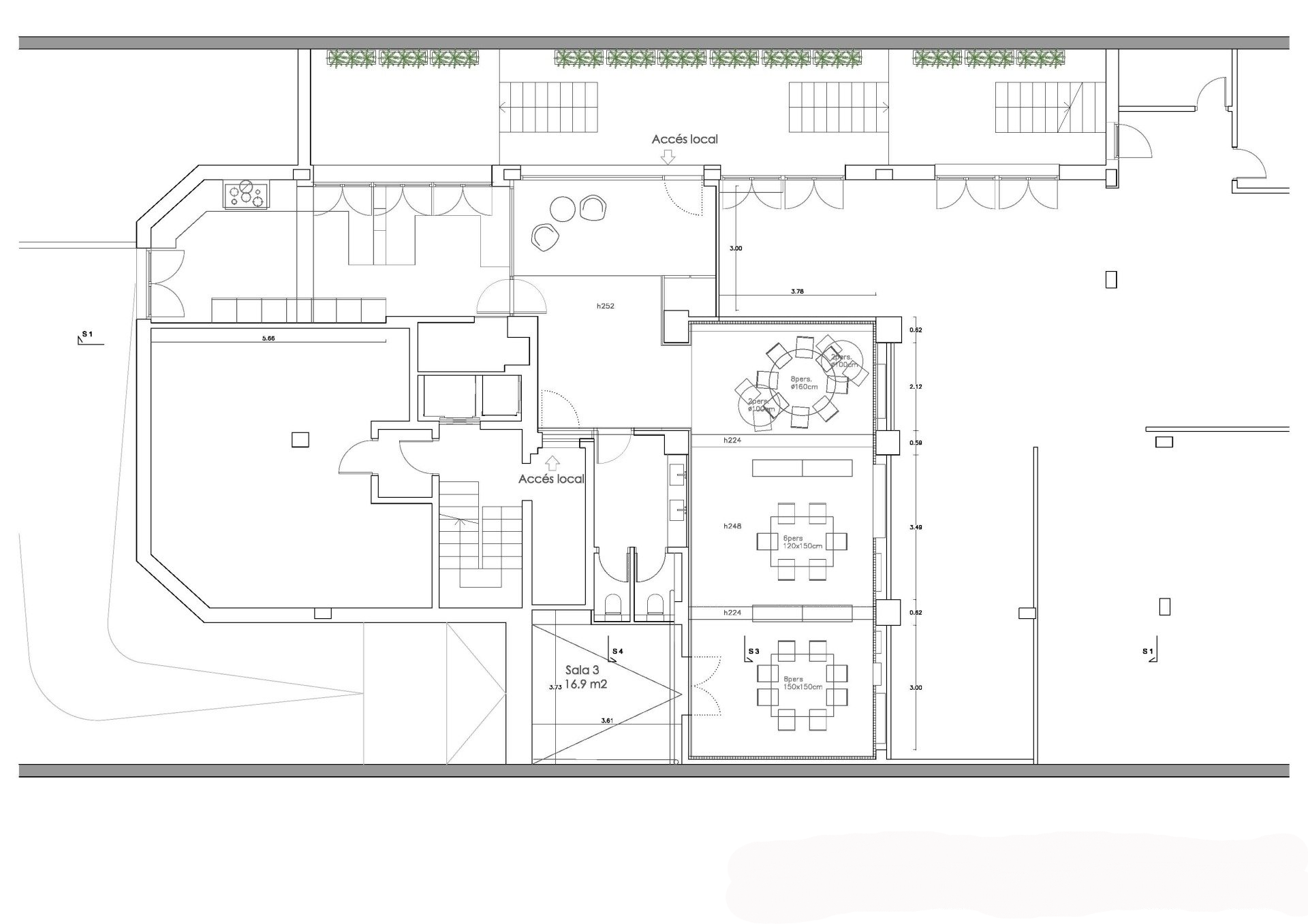
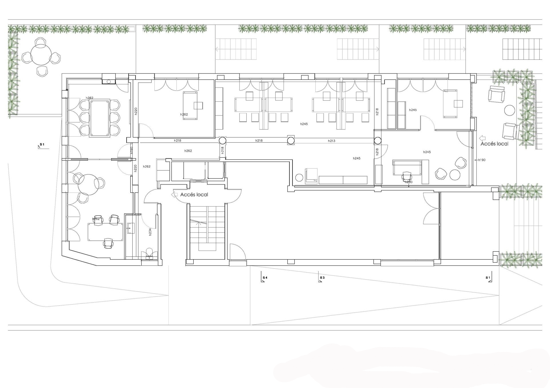
Restaurante Catering Airolo
Restaurante Catering Airolo, Barcelona
+ info
Button
Button
Button
Button
Ver más
Button
Button
Restaurante Catering Airolo, Barcelona
Arquitectura:
Eugènia Santacana
Proyecto:
2016
Construcción:
2016
Superficie:
-
Presupuesto:
-
Constructora:
García Comas Services
Button
Button
Ver más
© 2024
Todos los derechos reservados | Eugènia Santacana Arquitecta
Share by: